Vente Appartement 3 pièces à Cannes


70m², 2 terrasses, traversant (ouest-est)
quartier Galliéni - Anglais
dans résidence récente (1992)
sécurisée, très bon standing
avec piscine, jardin, gardien, vidéophone, ascenseur

Vous pouvez oublier la voiture! Le centre ville est accessible à pieds:
- la Croisette, les plages et le Palais des Festivals sont à 1 km;
- la gare SNCF est à 800 m;
- écoles à proximité immédiate; proche lycées et commerces, banques, bus

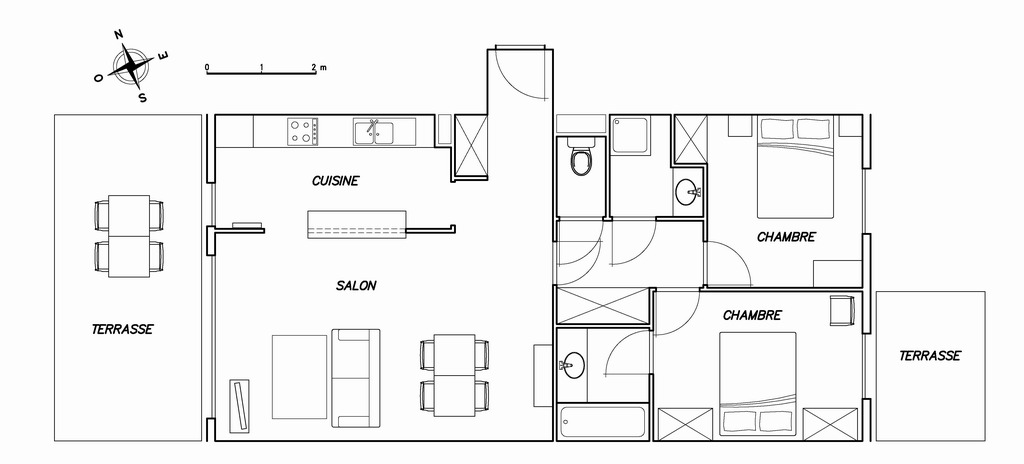
plan
(cliquez sur le plan pour l'ouvrir en format Pdf)


Premier étage.
Salon avec cuisine américaine (total 36 m²),
avec belle terrasse de 16m² donnant sur une petite rue tranquille;
chambre  de 11m² avec terrasse de 5,5m²,
deuxième chambre de 9m² avec placard mural,
les deux chambres donnant sur le jardin intérieur de la résidence, au calme absolu;

1 salle de bains (attenante une des chambres) et 1 salle de douche; toilettes séparées
2 placards muraux à l'entrée et dans le couloir
chauffage individuel éléctrique

vendu avec 1 belle cave de 5,5m² et 1 parking en sous-sol
vendu meublé (si souhaité)

Prix: 299 000


possibilité d'achat d'un box fermé en supplément
(25 000 €)

charges de copropriété:
la quote-part budget prévisionnel charge vendeur (dépenses courantes) est de 2200€ approx.

taxe foncière: 1113€; taxe d'habitation: 1350€

Position sur Google Map: Cliquez ici

Google Street View: Cliquez ici


Pour renseignements et visite:
Paolo 0630 591774
paolobisol@hotmail.com



(cliquez sur les images pour les agrandir)
 
16facade.JPG
façade
17facade.JPG
façade
20jardin.JPG
jardin et piscine
21jardin.JPG
jardin
23piscine.JPG
piscine
24piscine.JPG
piscine
P1090148.JPG
salon
P1090153.JPG
salon
P1080712.JPG
cuisine
P1080706.JPG
terrasse
P1080704.JPG
terrasse
P1080705.JPG
terrasse
   
P1080718.JPG
cuisine
P1080669.JPG
salle de douche
P1080667.JPG
salle de douche
P1090129.JPG
couloir avec placard
P1080665.JPG
toilettes
   
P1090121.JPG
chambre
     
P1090128.JPG
chambre
P1090123.JPG
chambre avec placard
P1080664.JPG
autre chambre
P1080688.JPG
terrasse sur jardin
 
P1080678.JPG
salle de bain
P1080682.JPG
salle de bain
P1080683.JPG
terrasse sur jardin
P1080686.JPG
porte-fenêtre chambre
P1080691.JPG
terrasse sur jardin
P1080687.JPG
fenêtre chambre
P1090137.JPG
jardin
P1090139.JPG
piscine